MIL-STD-220
MIL-F-15733
LV Directive
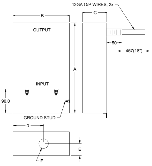
| MODEL | AMPS | TERMINAL | DIMENSIONS, MM(IN) | WEIGHT LBS(KG) | O/P PIPE | O/P WIRE(GA) |
|---|---|---|---|---|---|---|
|
||||||
| PFMF920MR-16-2 | 16 | M5 |
|
8.8 (4) | 1.0" NPS | 12 |
|
