MIL-STD-220
MIL-F-15733
MIL-STD-810
LV Directive
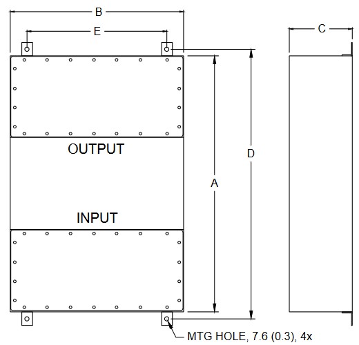
| MODEL | AMPS | TERMINALS | DIMENSIONS - MM(IN) | WEIGHT LBS(KG) |
|---|---|---|---|---|
|
||||
| PFMT255S-32 | 32 | M6 |
|
16(7.3) |
|
