MIL-STD-220
MIL-F-15733
MIL-STD-810
LV Directive
 
															 
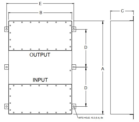
															| MODEL | AMPS | TERMINALS | DIMENSIONS - MM(IN) | WEIGHT LBS(KG) | 
|---|---|---|---|---|
| 
 | ||||
| PFMT355S-200 | 200 | M12 | 
 | 195(88.6) | 
| 
 | 
