MIL-STD-220
MIL-F-15733
MIL-STD-810
MIL-STD-202
MIL-STD-285
LV DIRECTIVE
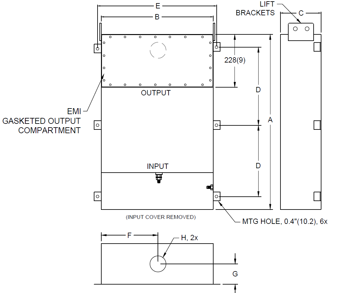
| MODEL | AMPS | TERMINAL | DIMENSIONS, MM(IN) | WEIGHT LBS(KG) |
|---|---|---|---|---|
|
||||
| PFMF301S-200 | 200 | M12 |
|
80 (36.4) |
|
