MIL-STD-220
MIL-F-15733
MIL-STD-810
MIL-STD-202
MIL-STD-285
LV DIRECTIVE
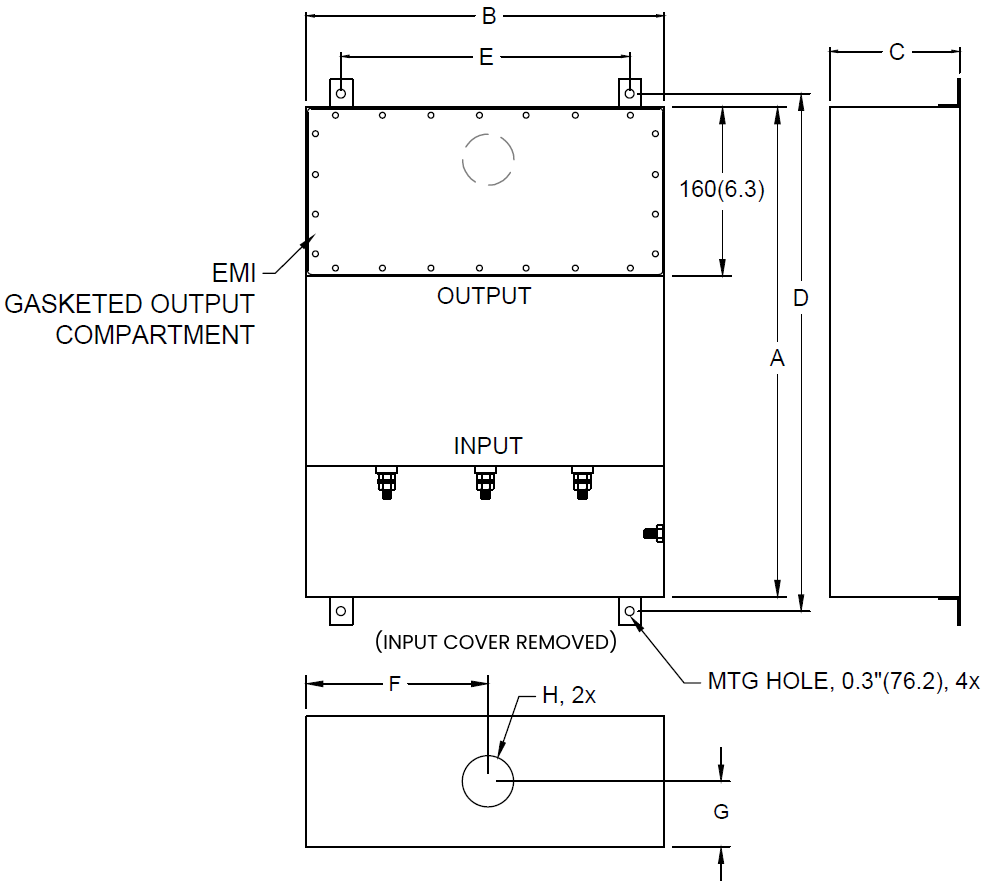
| MODEL | AMPS | TERMINAL | DIMENSIONS, MM(IN) | WEIGHT LBS(KG) |
|---|---|---|---|---|
|
||||
| PFMF332S-63 | 63 | M10 |
|
117 (53.2) |
|
