Home
EMI/RFI FILTERS
Products
About Us
Blog
FAQs
Resources
Terms and Conditions
Warranty Information
Installation Instructions
Contact Us
PFMF370-200-1
1-LINE + GND SCIF/TEMPEST FILTER
SPECIFICATIONS
Max voltage: 0-277VAC
Max current: 200A/Line
Frequency: 50/60HZ
Operating temp.: -40 to 65C
Hipot (L-G): 2200VDC (prior to installing discharge resistors)
Discharge volt. (@277V): <30V in 30s
Volt. drop: <2% max at full rated unity load
Overload: 140% rated current for 15 minutes
Performance: 100dB (14KHZ to 40GHZ)
Manufactured in accordance with the following standards:
MIL-STD-220
MIL-F-15733
MIL-STD-810
LV DIRECTIVE
DOWNLOAD SHEET
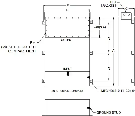
NOTES:
1. CONDUIT CUTOUTS BY END USER.
2. FILTER IS BIDIRECTIONAL. IF INSTALLING FILTER INTERNAL TO SCIF RUN POWER INPUT WIRING INTO FILTER EMI GASKETED OUTPUT COMPARTMENT.
MODEL
AMPS
TERMINAL
DIMENSIONS, MM(IN)
WEIGHT LBS(KG)
A
B
C
D
E
PFMF370-200-1
200
M12
1219
280
280
559
330
180 (81.8)
(48)
(11)
(11)
(22)
(13)
SPECIFICATIONS SUBJECT TO CHANGE