MIL-STD-220
MIL-F-15733
MIL-STD-810
LV DIRECTIVE
NOTE: LIFT BRACKETS PROVIDED ON CABINET
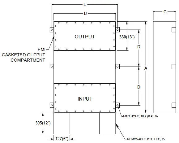
| MODEL | AMPS | TERMINALS | DIMENSIONS - MM(IN) | WEIGHT LBS(KG) |
|---|---|---|---|---|
|
||||
| PFMT455S-400 | 400 | M16 |
|
295(134.1) |
|
