MIL-STD-220
MIL-F-15733
MIL-STD-810
LV DIRECTIVE
NOTE: LIFT BRACKETS PROVIDED ON CABINET
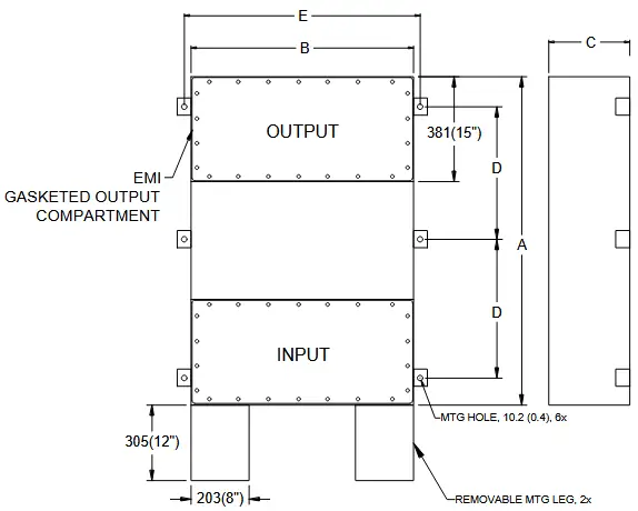
| MODEL | AMPS | TERMINALS | DIMENSIONS - MM(IN) | WEIGHT LBS(KG) |
|---|---|---|---|---|
|
||||
| PFMT455S-600 | 600 | 2xM16 |
|
450(204.5) |
|
